локация

схема прохода

ст. м. Ленинский проспект
МЦК «Площадь Гагарина»
3 минуты пешком
(до входа в здание)

схема проезда

Третье транспортное кольцо
ТТК - 50 метров

описание БЦ

Предлагается в прямую аренду от собственника современный Бизнес-центр класса «А». Высококачественная отделка мест общего пользования, офисная часть помещения — «под отделку» или с частичной отделкой.

Арендодатель готов предоставить арендные каникулы на ремонт или выполнить отделку офисной части помещения по проекту и требованиям арендатора. Большой атриум со стеклянным куполом добавляет помещению света и «воздуха». Панорамное остекление фасада (с фрамугами с электроприводом).

этажность с 4 по 9
0
общая площадь БЦ
0 м²
площадь 4 этажа
0 м²
площадь лобби
0 м²
площадь этажа с 5 по 9
0 м²
этажность с 4 по 9
0
машиномест
подземный тёплый паркинг
0
машиномест (бесплатно!)
подземный паркинг
0
РУБ/М²/ГОД - ставка аренды
включая эксплуатацию и НДС 22%
от 0

Состоит из 6 этажей и зоны лобби (отдельный презентабельный вход с улицы). Возвышается над зданием Культурно-досугового центра «Гагаринский». Два этажа подземного теплого паркинга. Каждый офисный этаж имеет две лифтовые зоны: пассажирскую и грузовую, две зоны санузлов, оснащен современными централизованными системами вентиляции (13 800 м³/час на этаж) и кондиционирования, пожаротушения и пожарной сигнализации, системами контроля доступа и видеонаблюдения.

Вторая категория надежности электроснабжения (резервирование по 2-м вводам).

Эффектное лобби с отдельным входом с улицы, охраной, ресепшн и комфортабельной зоной ожидания, кофе-пойнт, санузел.

Входит в структуру Бизнес-парка «Орджоникидзе 11».

Планируемый ввод в эксплуатацию — 2 квартал 2026 года.

планировка здания

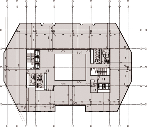
план 4 этажа

план 5-9 этажей

тест-фит этажа

  • Общая площадь этажа 1 700,9
  • Общая площадь офиса 1 382,6
  • Площадь О.С. 894,7
  • Рабочих мест в опен спейсе 133
  • Рабочих мест в кабинете инд. 5
  • Рабочих мест в кабинете отд. 17
  • Незакрепленных мест в опен спейсе 17
  • Плотность на 1 человека м² в О.С. 6,8
  • Ресепшн и зона ожидания
    Ресепшн и зона ожидания 2
  • Гардероб
    Гардероб 2
  • Кабинет индивидуальный
    Кабинет индивидуальный 5
  • Кабинет на отдел
    Кабинет на отдел 3
  • Кофепоинт
    Кофепоинт 2
  • Переговорная
    Переговорная 7
  • Телефонная будка
    Телефонная будка 7
  • Принтерная
    Принтерная 2
  • Санузлы
    Санузлы
  • Опен спейс и транзитная зона
    Опен спейс и транзитная зона
  • Зона коллаборации и гибкого офиса
    Зона коллаборации и гибкого офиса
тест-фит этажа

визуализация проекта

инфраструктура

Концепция «сухие ноги» позволяет резидентам пользоваться инфраструктурой без выхода на улицу.

заявка на аренду

* Обязательные для заполнения поля
Продолжая использовать этот сайт, вы соглашаетесь на использование файлов cookie. Более подробная информация в Политике конфиденциальности.